Котёл КВ-1,3 на угле

Котел КВ-1.3 — твердотопливный агрегат, работающий в паре с механическими топками с пневмомеханическими забрасывателями и решетками обратного хода. Предназначен для нагревания воды до 115 °С, используемой в системах отопления и горячего водоснабжения в промышленных, бытовых и технологических целях. Отапливаемая площадь 13000 м². Работает на каменном угле теплопроводной способностью 22 500 кДж/кг.

Цена:
425 000 руб.
Количество:
Отправляя свои личные данные через формы на сайте, Вы даёте своё согласие на обработку персональных данных согласно Федеральному закону №152-ФЗ «О персональных данных» от 27.07.2006 г. в редакции от 01.07.2017.

Устройство и принцип работы котла КВ-1.3

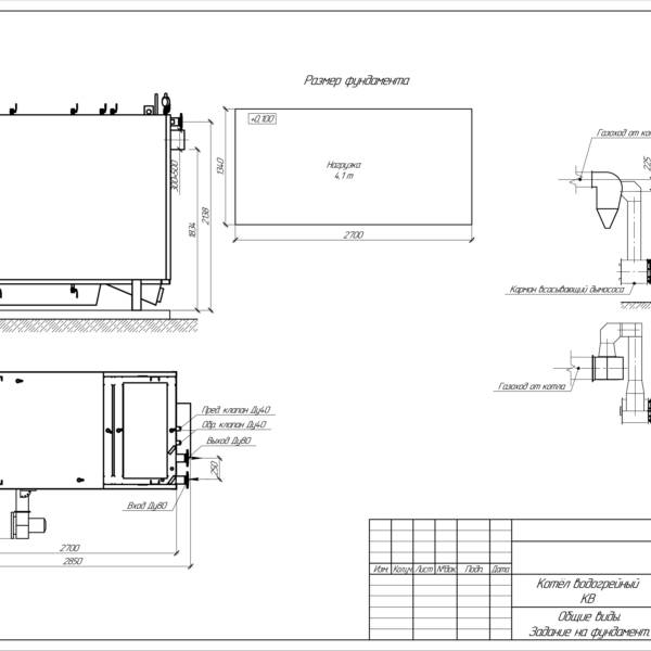
Котел КВ-1.3 поставляется в моноблочном (котел) или двублочном (котел и топка) исполнении. При необходимости, поставляется третий блок — воздухоподготовитель. Топки котла КВ изготовлены из труб, как и конвективные пакеты. Агрегаты комплектуются колосниковыми цепными решетками обратного хода с пневмомеханическими забрасывателями.

В качестве топлива НЕ используются: высокозольный высоковлажный бурый уголь, сланцевые породы, торф и отходы углепромышленности.

Условное обозначение

Котел КВ-1.3, где:

  • К — котел;
  • В — водогрейный;
  • 1.3 — мощность топки.

Монтаж котла КВ-1.3

Котел КВ-1.3 поставляется в комплекте с механической топкой и пневмамеханическим забрасывателем ЗП. Устройство доставляется в максимальной заводской сборке, готовое к монтажу и пуско-наладочным работам. Установка монтируется на подготовленное выравненное основание и надежно фиксируется при помощи анкерных креплений.

Монтаж и пуско-наладочные работы котельного оборудования производятся специалистами с соблюдением СНиП 11-35-76 «Котельные установки» и «Правил устройства и безопасной эксплуатации паровых и водогрейных котлов».

Характеристики
Тип: КВ
Вид топлива: Каменный уголь$Бурый уголь
Мощность: 1.12 Гкал
Мощность: 1300 кВт
Мощность: 1.3 МВт
КПД, не менее: 85 %
Вид топки: Механическая колосниковая решётка
Класс котла: 2
Отапливаемая площадь: 13000 м²
Отапливаемый объём: 39000 м³
Тяга: Принудительная
Температура воды на выходе, не менее: 70...95 °С
Аэродинамическое сопротивление: 450 Па (мм. вод. ст.)
Расход теплоносителя среды: 45 м³/ч
Расход топлива: 306 кг/ч
Низшая теплота сгорания топлива: 5200 кКал/кг
Давление рабочей среды: 0,3-0,6 (3,0-6,0) МПа (кгс/cм²)
Гидравлическое сопротивление при перепаде t: 0,08 МПа (кгс/cм²)
Температура уходящих газов: 180…200 °C
Радиационная поверхность нагрева: 15.1 м²
Конвективная поверхность нагрева: 42 м²
Номинальное разрежение в топке при работе: 20…40 Па
Габаритные размеры (ДxШxВ): 2850x1340x2334 м
Масса котла (без воды): 3000 кг
Расчетный срок службы, не менее: 10 лет

Города поставок

Москва
Пн-Пт 09:00 - 18:00
Сб 09:00 - 17:00
Карачаево-Черкесская Республика
Пн-Пт 09:00 - 18:00
Сб 09:00 - 17:00
Екатеринбург
Пн-Пт 09:00 - 18:00
Сб 09:00 - 17:00

Совершите покупку за 4 шага

Шаг 1
Выберите товары из каталога
Шаг 2
Поместите нужные вам товары в корзины
Шаг 3
Укажите свои контактные данные в форме обратной связи
Шаг 5
Ожидайте звонка от менеджера для оформления покупки

Похожие товары

КВм
Котлы КВм
Цена от 0 руб.
Отопительные котлы
Водогрейный котел КВм-7.0 на ДВО используется для нагрева жидкости до 115 °С, применяемой в системах отопления и горячего водоснабжения. Отопительные приборы КВм-7.0 способны прогревать помещения площадью до 70000 м². Твердотопливный котел оснащается механической топкой на древесных отходах со шнековой подачей. Дополнительно к агрегату приобретаются сопутствующие товары: вентиляторы, дымососы, циклоны, дымовые трубы, бункер топки и другое котельное оборудование.
Отопительные котлы
Водогрейный котел КВм-6.3 на ДВО используется для нагрева жидкости до 115 °С, применяемой в системах отопления и горячего водоснабжения. Отопительные приборы КВм-6.3 способны прогревать помещения площадью до 63000 м². Твердотопливный котел оснащается механической топкой на древесных отходах со шнековой подачей. Дополнительно к агрегату приобретаются сопутствующие товары: вентиляторы, дымососы, циклоны, дымовые трубы, бункер топки и другое котельное оборудование.
Вы смотрели эти товары
Отопительные котлы
Котел КВ-1.3 — твердотопливный агрегат, работающий в паре с механическими топками с пневмомеханическими забрасывателями и решетками обратного хода. Предназначен для нагревания воды до 115 °С, используемой в системах отопления и горячего водоснабжения в промышленных, бытовых и технологических целях. Отапливаемая площадь 13000 м². Работает на каменном угле теплопроводной способностью 22 500 кДж/кг.