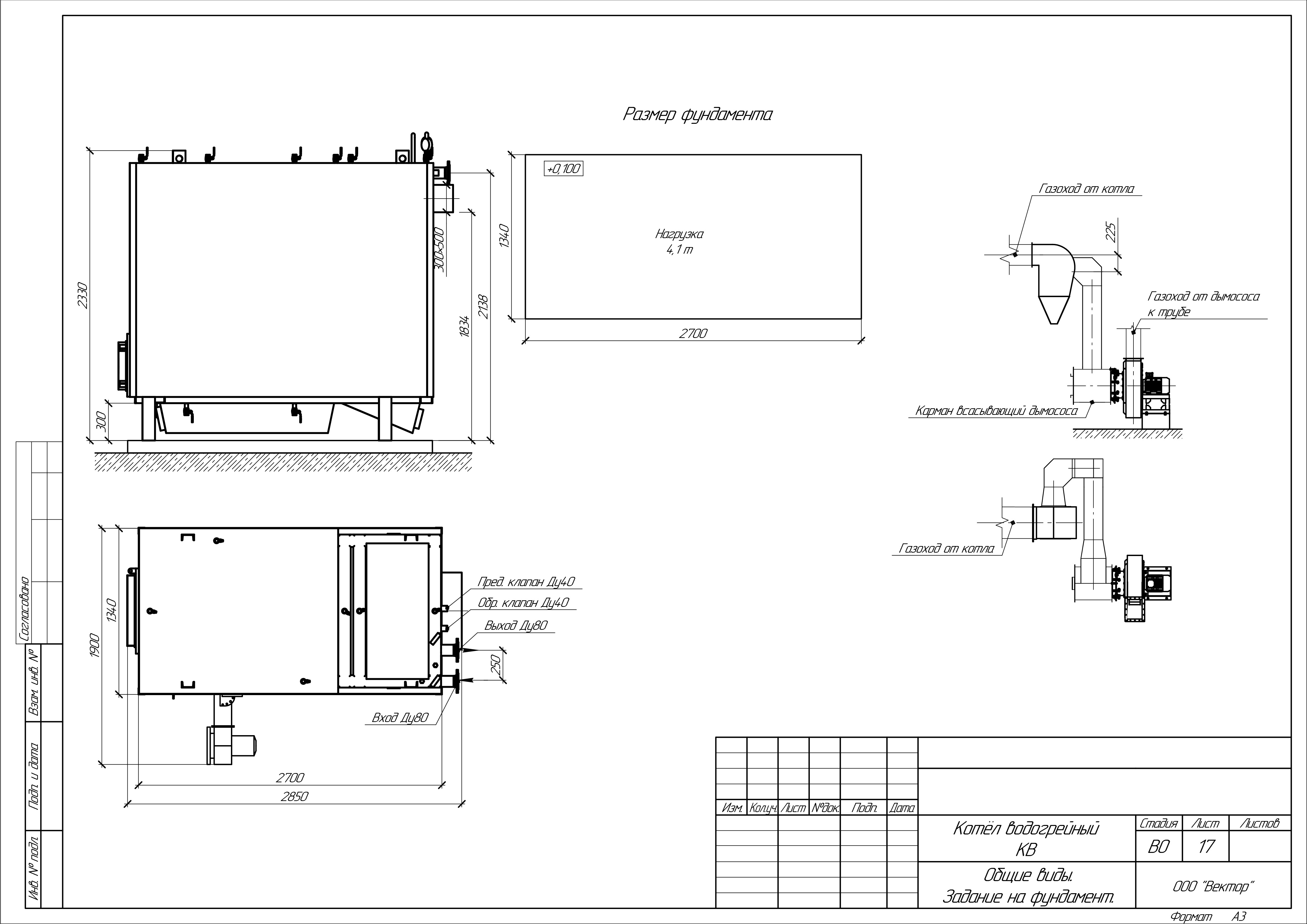
Устройство и принцип работы
Конструктивно нагревательное оборудование КВ-1.25 на угле с топкой ТЛЗМ состоит из прочного сварного корпуса, который изготовлен из специальной газоплотной стали. Стенки котла отлично противодействуют сильному нагреву. Топка ТЛЗМ подразумевает наличие механизированных или пневматических забрасывателей. Данный тип конструкции рассчитан на непрерывную подачу твердого топлива внутрь камеры сгорания.
Специальная конструкция топки позволяет оптимизировать процесс горения твердого топлива разных фракций, включая пылевые фрагменты. При этом сама камера состоит из валов, колосникового привода, металлической рамы, забрасывателя и подвижного полотна. Все составляющие части имеют простую конструкцию, что положительно сказывается на легкости обслуживания.
Особенности и преимущества
- широкий диапазон регулировок;
- минимальные потери тепла;
- механизированная подача топлива;
- автоматизированный процесс горения;
- высокая эффективность оборудования.
Размещение и установка
Перед проведением основных монтажных работ рассчитывается эффективность смежных единиц обслуживания котла КВ-1.25 на угле с топкой ТЛЗМ. Специалисты проверяют наличие смазки в редукторах, а также осматривают другие сборочные части нагревательной системы. Важно подготовить место для монтажа и все подходящие коммуникации. Установка осуществляется с использованием измерительного оборудования в виде уровня и рулетки.
Монтажники учитывают требования по зазорам, что немаловажно для нормальной исправной работы котла. После монтажа топки осуществляется проверка всех подвижных частей и механизмов. При обкатке все ключевые узлы должны иметь плавный ход без каких-либо технических дефектов.
Эксплуатация и техническое обслуживание
В ходе эксплуатации оборудования КВ-1.25 на угле с топкой ТЛЗМ большое внимание уделяют топке и навесным узлам. Важно систематически производить чистку решетки путем полного удаления шлака. После полной очистки решетчатой части потребуется произвести аналогичные процедуры для бункера. При этом вентиляционное оборудование котла отключается лишь через 3 часа после удаления золы и шлака.
Купить котёл КВ-1.25 на угле с топкой ТЛЗМ
Приобрести КВ-1.25 на угле с топкой ТЛЗМ можно через нашу компанию, которая имеет широкий ассортимент заводской продукции. Приобретение возможно путем составления заявки на заказ. Заказать продукцию можно через телефон или специальную форму на сайте. На котёл предоставляются официальные гарантии.

